Australia

# Sold $610,000

44 Powell Avenue, Robe, SA 5276

# Location

Description

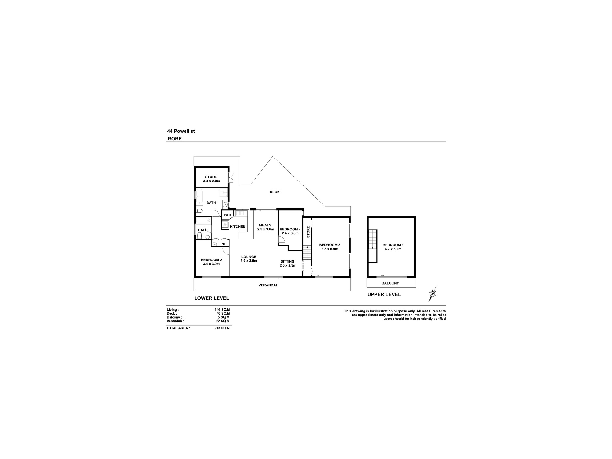
Vintage Vibes At The Seaside 44 Powell Ave is a cosy, comfortable, 4-bedroom cottage in pristine Robe known as The WardRobe. It's currently run as a short-term holiday rental with an emphasis on social interaction, reconnection for family and friends. The home is a spilt level, featuring an upstairs loft that currently is used as the 4th bedroom. This space is a beautiful sunlit room featuring a balcony, polished timber floors and chapel ceiling. The loft has endless possibilities, second living space, art studio, home office. The heart of the home is located on the ground level consisting of 2 bathrooms both appointed with bath, shower and toilet, open kitchen with servery out to the outdoor entertaining area, dining area, 2 bedrooms, sitting area plus open lounge area with wood fire. The space is warm and cosy throughout winter with the fire and cool through summer with the AC and lovely air flow through the home with the sliding doors located at the front and back of the home. The 3rd bedroom/rumpus room is on the base level of the home featuring glass doors outside and storage under the stairs. The home has front and rear entertaining decks, outdoor shower, lock up storage for surfboards, garden items, push bikes and your extra bits and pieces. Dual driveway, enclosed yard, private front deck. The WardRobe is sold walk in walk out excluding a few small items. No better location for your next home or beach house; 200m from Robe's famous Long Beach. The town centre is 5mins by car or 20-30 minute walk along the coastal trail.

View More #

Location

  • Contact the agency

    To request an inspection

  • # Call # Email

Linda Tait

Agent Name

# Report Listing

Looking for a property?

  • Top listings
  • Investment
  • Development
  • Personal home
  • Price reports
  • Suburb reports

Do you own a property?

  • Place a free listing
  • Services for private advertisers
  • Guide to selling your home
  • Insurance
  • Improve the photos of your listing
  • Value your property for free

Are you a real estate proffesional?

  • Publish your agencies properties
  • Already a client? Log into your account
  • Advertising on Australian Real Estate
  • Australian Real Estate data technology for property insights
  • Real Estate courses