Australia

# Sold $585,000 to $615,000

18 Thompson Road, Robe, SA 5276

# Location

Description

Coastal Home Opportunity!

We are pleased to bring to market this attractive property, central to Robetown.

Contemporary tones throughout the home combine nicely with the warmth in the flooring and benchtops, providing a fresh and inviting feel.

With a large, open living space opening out onto front and back verandahs, this property offers comfort and space in which to entertain or relax.

The variance of living spaces to choose from offers versatility and an ability to be responsive to weather conditions, perfect for those BBQ's or family gatherings.

The modern kitchen within this space has all of the features you love including a dishwasher, modern wall oven and microwave, fashionable rangehood and more. The popular bench set sink, with servery screenage, allows conversation to continue with family or guests while meal preparation or management can continue seamlessly.

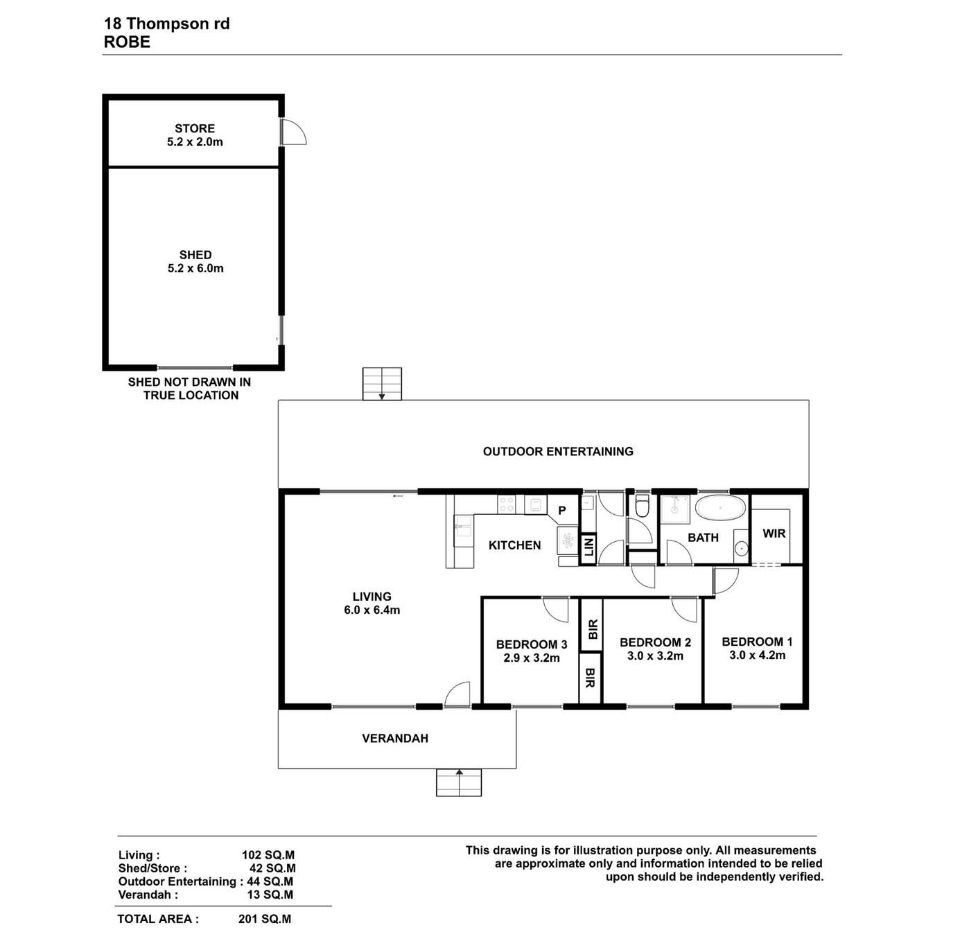
The three bedrooms and bathroom area are conveniently located down the hall at the other end of the property, offering a private end to the home.

Rear yard access runs to the new large shed, which not only has an impressive front space with numerous options for use, but also a divider wall for a separate rear room storage of garden equipment, or surf boards and beach gear.

What we love about the property:

• Modern look • Well appointed, modern kitchen • Attractive bathroom with bath and walk in shower • Open living area • Downlights throughout living area • Modern laundry with under bench front loading machine • Back yard access through the laundry to the separate toilet, perfect if working or entertaining outdoors • New rear decking • Freshly painted exterior and living space • Convenient walk in robe off the main bedroom • Ceiling fan in main bedroom • Built in robes in second and third bedrooms • Within walking distance to shops, restaurants, the cinema, coffee shops, playgrounds and services. • Wood fire

• Reverse cycle air conditioning

Your time to invest in a property in one of SA's most sought after tourism destinations is right now.

Contact Selling Agents Nedd Golding and Karyn Prelc for your private inspection and further information.

RLA 277795.

View More #

Floor Plans

Location

  • Contact the agency

    To request an inspection

  • # Call # Email

Nedd Golding

Agent Name

Karyn Prelc

Agent Name

# Report Listing

Looking for a property?

  • Top listings
  • Investment
  • Development
  • Personal home
  • Price reports
  • Suburb reports

Do you own a property?

  • Place a free listing
  • Services for private advertisers
  • Guide to selling your home
  • Insurance
  • Improve the photos of your listing
  • Value your property for free

Are you a real estate proffesional?

  • Publish your agencies properties
  • Already a client? Log into your account
  • Advertising on Australian Real Estate
  • Australian Real Estate data technology for property insights
  • Real Estate courses